Development Opportunity: Development Site with full planning permission for 16 residential dwellings for an age-friendly / elderly living residential development.
(NOTE: The Eircode provided is for identification purposes only and relates to a neighbouring property)
Planning Permission Details:
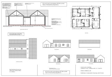
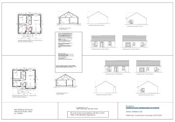
Planning Reference: 24/60030 | ABP Reference: 321152-24, Full planning permission has been granted for the development of 16 dwellings comprising a mix of 2-bedroom (3-person) and 2-bedroom (4-person) single storey bungalows ranging in size from approximately 74–76 sq.m and arranged around shared open space. The scheme also includes 2 community-type dwellings, each extending to approximately 244 sq.m, designed to provide support facilities for senior living.
Below is a brief summary of the proposed scheme as per the planning permission granted.
Type: Age-friendly / elderly living residential development.
Scale: Planning for 16 dwellings including a mix of 2 bedroom (3-person) and 2 bedroom (4-person) single storey houses, and two community homes grouped ground shared open space.
Ancillary works:
1. Internal roads and car parking spaces
2. Boundary treatments and landscaping
3. Connection to public water, foul and surface water systems
4. Communal bin storage and bicycle parking.
Castleconnell is approximately 17 km from Limerick City Centre and 9 km from Castletroy, with convenient links to the M7 Limerick–Dublin motorway, the M20 Limerick–Cork motorway, and the M18 Limerick–Galway motorway. The subject site is located within the existing Castlerock residential estate, which lies within walking distance of Castleconnell village. Castlerock is an established residential development comprising a mix of detached, semi detached and townhouses. Other residential developments in the village include Coolbawn Meadows, Stradbally North and The Hermitage, to name a few. The village is well served by local amenities, including crèches, sports clubs, pubs, cafés and convenience stores (including SuperValu), all located within the village centre. The area is served by several well-established schools, including Castleconnell National School, Lisnagry National School and Castletroy College. It is also only a short drive from the University of Limerick and Plassey Technological Park, with Limerick City Centre approximately 13 km away.
The subject site is located at the southern end of the internal road within the existing Castlerock residential estate. The site is bounded on three sides by existing Castlerock residential houses. Access to the proposed development will be via the main Castlerock estate road, which connects to the R525 (Castleconnell Road).
Note: No information, statement, description, quantity or measurement contained in any sales particulars or given orally or contained in any webpage, brochure, catalogue, email, letter, report, docket or hand out issued by or on behalf of Youbid or the vendor in respect of the property shall constitute a representation or a condition or a warranty on behalf of Youbid. Any information, statement, description, quantity or measurement so given or contained in any such sales particulars, webpage, brochure, catalogue, email, letter, report or hand out issued by or on behalf of Youbid or the vendor are for illustration purposes only and are not to be taken as matters of fact. Any mistake, omission, inaccuracy given orally or contained in any sales particulars, webpage, brochure, catalogue, email, letter, report or hand out issued by or on behalf of Youbid shall not give rise to any right of action, claim, entitlement or compensation against Youbid. All bidders must satisfy themselves by carrying out their own independent due diligence, inspections or otherwise as to the correctness of any and all of the information, statements, descriptions, quantity or measurements contained in any such sales particulars, webpage, brochure, catalogue, email, letter, report or hand out issued by or on behalf of Youbid on behalf of the vendor.
Please refer to the legal documents.
No information, statement, description, quantity or measurement contained in any sales particulars or given orally or contained in any webpage, brochure, catalogue, email, letter, report, docket or hand out issued by or on behalf of Youbid.ie or the vendor in respect of the property shall constitute a representation or a condition or a warranty on behalf of Youbid.ie or the vendor. Any information, statement, description, quantity or measurement so given or contained in any such sales particulars, webpage, brochure, catalogue, email, letter, report or hand out issued by or on behalf of Youbid.ie or the vendor are for illustration purposes only and are not to be taken as matters of fact. Any mistake, omission, inaccuracy or mis-description given orally or contained in any sales particulars, webpage, brochure, catalogue, email, letter, report or hand out issued by or on behalf of Youbid.ie or the vendor shall not give rise to any right of action, claim, entitlement or compensation against Youbid.ie or the vendor. All bidders must satisfy themselves by carrying out their own independent due diligence, inspections or otherwise as to the correctness of any and all of the information, statements, descriptions, quantity or measurements contained in any such sales particulars, webpage, brochure, catalogue, email, letter, report or hand out issued by or on behalf of Youbid.ie or the vendor.
By setting a proxy bid, the system will automatically bid on your behalf to maintain your position as the highest bidder, up to your proxy bid amount. If you are outbid, you will be notified via email so you can opt to increase your bid if you so choose.
If two of more users place identical bids, the bid that was placed first takes precedence, and this includes proxy bids.
Another bidder placed an automatic proxy bid greater or equal to the bid you have just placed. You will need to bid again to stand a chance of winning.